【外観】おしゃれな外観です♪
-
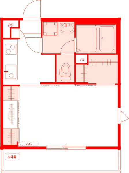
バストイレ別
-
室内洗濯機置場
-
TVモニタ付きインターホン
-
独立洗面台
-
浴室乾燥機
-
ネット使用料無料

外観- 保証金
- -
- 敷引 / 償却
- - / -
- 敷金積み増し
- -
- 間取り / 詳細
- 1K
洋室 7.5帖 - 向き
- 南東
- 専有面積
- 27.32㎡
- バルコニー
(テラス)面積 - -
- 所在階 / 階建て
- 1階 / 2階建
- 建物構造
- 木造
- 築年月
- 2017年1月(築9年)
- 種別
- アパート
- 保険会社 / 料金
- 有 / -
- 保証会社 / 料金
- 必加入 / その他
初回:総賃料100%/月総賃料1.1% - 現況
- 居住中
- 入居可能時期
- 2026年03月上旬
- その他条件
- 室内消毒費:1万6,500円 24H加入費:7,700円 鍵交換代:2万4,200円 室内清掃費用:4万1,800円 24H:2,200円(月額) 口座引落手数料:330円(月額)
- 設備条件
-
- 陽当り良好 / 保証人不要 / 法人可 / 室内洗濯機置場 / フローリング / バルコニー / 都市ガス / 電気有 / 駐輪場 / 敷地内ごみ置き場 / IHクッキングヒーター / コンロ2口以上 / システムキッチン / バス・トイレ別 / 浴室乾燥機 / 温水洗浄便座 / シャワー / 独立洗面台 / エアコン / シューズボックス / インターネット対応 / ネット使用料無料 / TVモニタ付インターホン / 宅配ボックス / 24時間緊急通報システム / 複層ガラス / 角部屋 / 初期費用カード決済可
- 契約期間
- 定期借家 2年
- 賃貸区分
- 定期借家権
- 更新料
- 1ヶ月(新賃料)
- 更新事務手数料
- -
- 総戸数
- -
- 特優賃
- -
- 取引態様
- 仲介
- 物件番号
- 101225709
- 管理コード
- -
- 情報更新日
- 2026年03月02日
- 次回更新予定日
- 2026年03月15日
- 取扱会社
-
- 株式会社湘南ライヴ 厚木店
- 神奈川県藤沢市南藤沢20-18 長塚第一ビル9階
- TEL:0466-47-6613
- 神奈川県知事 (1) 第31018号
- 備考
- 湘南エリアのお部屋探しは当店まで!
遠方でご来店ができない方でも、オンライン相談・オンライン契約・写真撮影代行・その他ご相談のります!
インターネット掲載物件を一括で内見したい方もご相談ください!※短期違約金あり(1年未満:総賃料1カ月分)
※再契約可 -
ファミリーレストラン
バーミヤン 辻堂店
199m(3分)
-
コンビニエンスストア
ファミリーマート 湘南東海岸店
487m(7分)
-
コンビニエンスストア
セブンイレブン 藤沢辻堂熊の森店
512m(7分)
-
コンビニエンスストア
ローソン・スリーエフ 辻堂海岸通り店
609m(8分)
-
その他
すき家 辻堂店
683m(9分)
-
スーパー
オーケー 辻堂店
800m(10分)
-
ファーストフード
なか卯 辻堂店
862m(11分)
-
公民館
辻堂市民センター・公民館
886m(12分)
-
ファミリーレストラン
デニーズ辻堂南口店
1056m(14分)
物件の特徴
セールスポイント
お気軽にご相談ください♪0466-47-6613
ポイント
浴室乾燥機 温水洗浄便座 IT重説 対応物件 シャッター フローリング
担当者のコメント
パノラマ画像
基本情報
設備条件
その他
周辺施設
近隣の物件
よく見られている物件
リブリ・湘南元町
7.8万円
4,000円
1K(27.32㎡)

またインターネットに公開しきれていない撮影写真や動画なども多数ありますので、退去前の物件でも店頭でご検討しやすいです!
是非お気軽にお問い合わせください!